Новая вилла в Algorfa

ID: N8485

От 478 000 €
Новая вилла в Algorfa
Новая вилла в Algorfa
Основные детали
Ref N8485
Тип объекта Вилла
Город Algorfa
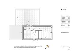
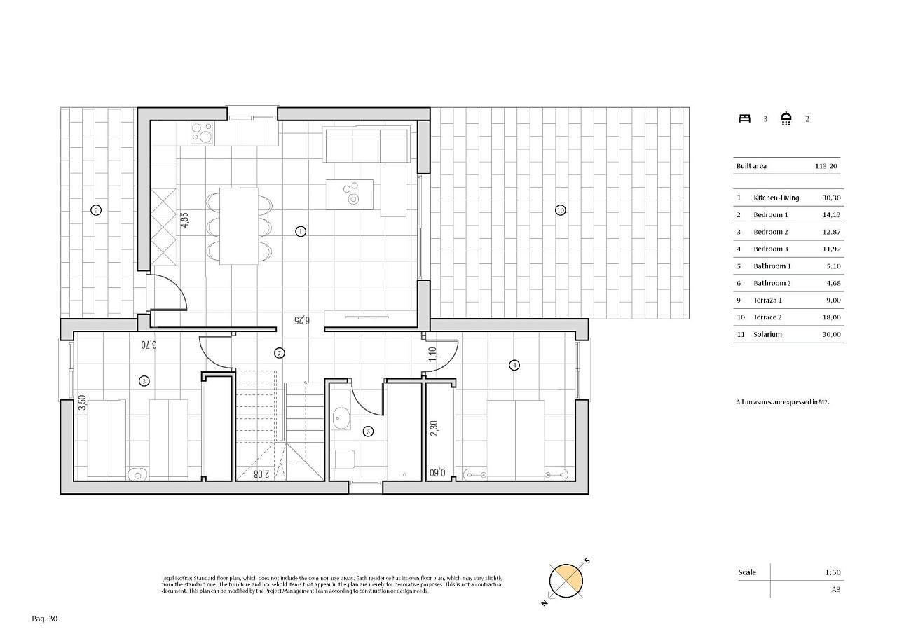
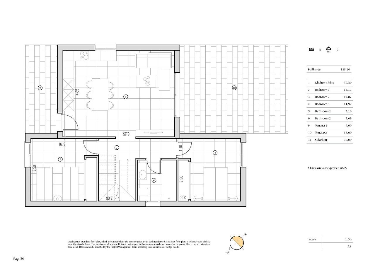
Площадь жилая 113 м²
Площадь участка 315 м²
Цена  от 478 000 €
Спальни 3
Ванные 2
Характеристики
Новая Недвижимость
Частный сад
Бассейн
Эксклюзивные виллы-новостройки в районе гольф-поля Альгорфы Откройте для себя эти потрясающие виллы в Альгорфе, расположенные в безмятежном окружении одного из самых престижных гольф-курортов Испании, La Finca Golf & Spa Resort. Расположенный в южной части провинции Аликанте, этот эксклюзивный комплекс сочетает в себе роскошную жизнь с удобствами курортного типа, создавая идеальный дом для любителей гольфа и тех, кто стремится к расслабленному средиземноморскому образу жизни. Элегантные виллы с 3 спальнями, частным бассейном и современным дизайном Каждая вилла продуманно спроектирована на двух просторных этажах и включает 3 спальни и 2 ванные комнаты. Кухня открытой планировки плавно переходит в гостиную, где большие окна и раздвижные стеклянные двери обеспечивают обилие естественного света и прямой выход на террасу и к частному бассейну. На участке предусмотрено удобное частное парковочное место, что подчеркивает простоту и эксклюзивность этих домов. Премиальные функции и технологии «умного дома Эти виллы оснащены целым рядом высококлассных функций, обеспечивающих максимальный комфорт и безопасность. Наслаждайтесь удобством частной крытой парковки, электрическими жалюзи, канальным кондиционером и сложной системой домашней автоматизации. Кроме того, полностью оборудованная система сигнализации обеспечивает душевное спокойствие. Ориентация на юг/юго-запад обеспечивает оптимальное естественное освещение круглый год, снижая потребление энергии, обеспечивая тепло и яркость от восхода до заката. Светлые жилые помещения с открытой концепцией и традиционными штрихами В этих домах, спроектированных по открытой концепции, используются большие окна и раздвижные двери, которые способствуют перекрестной вентиляции, сохраняя свежесть и наполняя интерьеры естественным светом. Архитектурный дизайн сочетает в себе современную эстетику с традиционными элементами, такими как каменные акценты на фасаде и деревянные детали, создавая теплую, гостеприимную атмосферу. Благодаря рейтингу EPC A, эти виллы отличаются энергоэффективностью и экологичностью, что делает их экологически чистым выбором для домовладельцев. Первоклассное расположение с доступом к пляжам и ключевым достопримечательностям Расположенные в хорошо развитом городе Альгорфа, эти виллы находятся всего в нескольких минутах езды от чистейших пляжей Гуардамара и Торревьехи, где вы можете наслаждаться солнцем более 300 дней в году. Поблизости вы найдете торговые центры, рестораны высокой кухни и яркие развлекательные заведения. Отличная инфраструктура и близость к основным дорогам, включая автомагистраль AP-7, обеспечивают легкое сообщение с такими популярными направлениями, как Ориуэла, Эльче, Мурсия и Аликанте. Аэропорт Аликанте находится всего в 40 км, а аэропорт Мурсии - в 55 км, что делает путешествие удобным. Ваш средиземноморский дом мечты ждет вас - свяжитесь с нами сегодня Не упустите возможность стать владельцем роскошной виллы в самом престижном районе гольф-курорта Альгорфа. Оцените идеальное сочетание современного комфорта, традиционного очарования и средиземноморского образа жизни. Свяжитесь с нами прямо сейчас, чтобы договориться о просмотре и открыть для себя дом своей мечты. 271
Окрестности

Не нашли то, что искали? Отправьте заявку на info@europisol.com. Мы подберем жилье индивидуально для вас. Для покупателя услуги агентства по подбору недвижимости бесплатны!

Внимание! Информация указана по данным застройщика на момент публикации. Уточнить наличие объектов недвижимости и актуальные цены можно, оставив заявку по адресу: info@europisol.com

Elena Suslova

+ 34 647173382 (ES, RU) viber, whatsapp, telegram

info@europisol.com

Свяжитесь с нами, и мы поможем вам в вашем выборе!
Подпишитесь на наши рассылки