New villa in Algorfa

ID: N8485

From 478 000 €
New villa in Algorfa
New villa in Algorfa
Main details
Ref N8485
Property type Villa
The City Algorfa
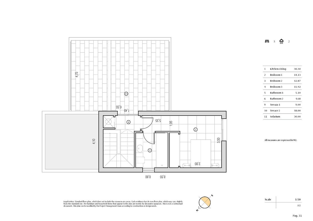
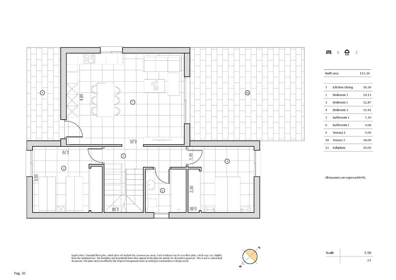
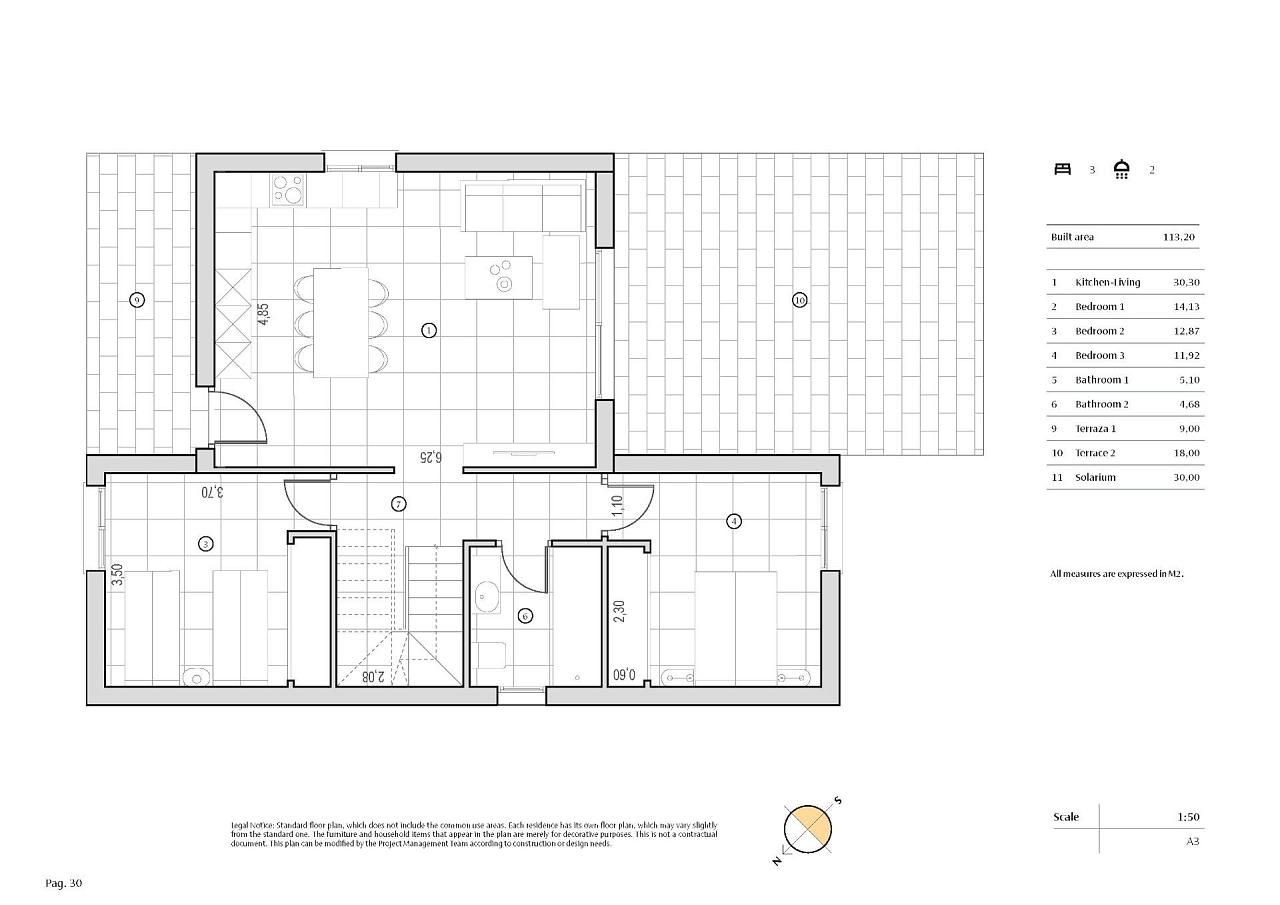
living place 113 M2
Plot 315 M2
Price  from 478 000 €
Bedrooms 3
Bathrooms 2
Characteristics
New
Private garden
Pool
Exclusive New-Build Villas in Algorfa Golf Course Area Discover these stunning new-build villas in Algorfa, nestled in the serene surroundings of one of Spain’s most prestigious golf resorts, La Finca Golf & Spa Resort. Located in the southern part of Alicante Province, this exclusive development combines luxurious living with the benefits of resort-style amenities, creating the ideal home for golf enthusiasts and those seeking a relaxed Mediterranean lifestyle. Elegant 3-Bedroom Villas with Private Pool and Modern Design Each villa is thoughtfully designed over two spacious floors, featuring 3 bedrooms and 2 bathrooms. The open-plan kitchen flows seamlessly into the living area, where large windows and sliding glass doors provide abundant natural light and direct access to the terrace and private pool. A convenient private parking space is included on the plot, enhancing the ease and exclusivity of these homes. Premium Features and Smart Home Technology These villas come with a range of high-end features to provide maximum comfort and security. Enjoy the convenience of private indoor parking, electric shutters, ducted air-conditioning, and a sophisticated home automation system. Additionally, a fully fitted alarm system ensures peace of mind. The south/southwest orientation allows for optimal natural lighting year-round, reducing energy consumption by providing warmth and brightness from sunrise to sunset. Bright, Open-Concept Living Spaces with Traditional Touches Designed with an open concept, these homes use large windows and sliding doors to promote cross-ventilation, keeping the interiors fresh and filled with natural light. The architectural design combines modern aesthetics with traditional elements, like stone accents on the façade and wooden details, creating a warm, inviting atmosphere. With an EPC A rating, these villas offer energy efficiency and sustainability, making them an eco-friendly choice for homeowners. Prime Location with Access to Beaches and Key Attractions Set in the well-established town of Algorfa, these villas are just a short drive from the pristine beaches of Guardamar and Torrevieja, where you can enjoy over 300 days of sunshine each year. Nearby, you’ll find shopping centers, fine dining restaurants, and vibrant entertainment venues. Excellent infrastructure and proximity to major roads, including the AP-7 motorway, ensure easy connections to popular destinations like Orihuela, Elche, Murcia, and Alicante. Alicante Airport is only 40 km away, while Murcia Airport is 55 km, making travel convenient. Your Mediterranean Dream Home Awaits – Contact Us Today Don’t miss this opportunity to own a luxurious villa in Algorfa’s most prestigious golf resort area. Experience the perfect blend of modern comfort, traditional charm, and Mediterranean lifestyle. Contact us now to arrange a viewing and discover your dream home. 271
Outside

If you cannot find what you are looking for, please send your request to info@europisol.com. Agency services for selection of real estate are free.

Pay attention to: The information is based on the developer's data at the time of publication. To clarify the availability of real estate objects and current prices, place an order with: info@europisol.com

Elena Suslova

+ 34 647173382 (ES, RU) viber, whatsapp, telegram

info@europisol.com

Contact with us, we will help you find your house!