Новый пентхаус в Murcia

ID: SP1548

От 299 000 €
Новый пентхаус в Murcia
Новый пентхаус в Murcia
Основные детали
Ref SP1548
Тип объекта Пентхаус
Город Murcia
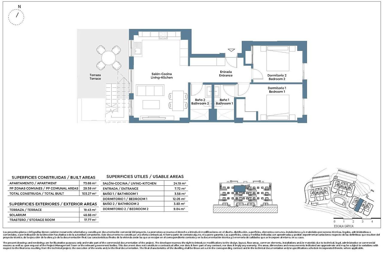
Площадь жилая 73 м²
Цена  от 299 000 €
Спальни 2
Ванные 2
Характеристики
Новая Недвижимость
Бассейн
Новые квартиры и виллы-дуплексы в Corvera Hills Golf — Мурсия Спокойная жизнь в окружении природы и полей для гольфа Откройте для себя уникальный жилой комплекс в Corvera Hills Golf, где спокойствие, природа и средиземноморский образ жизни соединяются в идеальной гармонии. Расположенный на фоне потрясающих гор Сьерра-де-Карраской, этот комплекс на возвышенности предлагает панорамные виды, свежий воздух и непринужденную атмосферу, идеально подходящую как для постоянного проживания, так и для отдыха. Расположенный на территории гольф-курорта, этот комплекс обеспечивает спокойную обстановку, оставаясь при этом хорошо связанным с близлежащими городами, пляжами и основными услугами. Это идеальное место для тех, кто ищет более размеренный ритм жизни, не жертвуя при этом комфортом или доступностью. Элегантные квартиры с ярким и функциональным дизайном Жилой комплекс включает 56 современных квартир, расположенных в трех стильных зданиях. Покупатели могут выбрать планировки с двумя или тремя спальнями, каждая из которых разработана с вниманием к деталям и акцентом на естественное освещение. На первых и средних этажах расположены квартиры с большими террасами, а на верхних — пентхаусы с частными соляриями. Каждая квартира отличается просторными интерьерами, высококачественными материалами и тщательно продуманными жилыми зонами, создающими ощущение комфорта и аутентичности. К жилым помещениям относятся открытая парковка и частное кладовое помещение в подвале, что добавляет удобства повседневной жизни. Современные виллы-дуплексы с частными садами Помимо квартир, комплекс предлагает 12 вилл-дуплексов с тремя спальнями и тремя ванными комнатами, расположенными на двух уровнях. Эти дома располагают частными садами и соляриями на крыше на участках площадью от 250 до 400 м², предоставляя просторные открытые пространства, где можно наслаждаться средиземноморским климатом. Виллы спроектированы в современном, но сдержанном архитектурном стиле, гармонично вписывающемся в окружающий ландшафт. Их планировка ориентирована на комфорт, функциональность и уютную жилую среду, идеально подходящую для семей или тех, кто ищет дополнительное пространство. Качественные характеристики и комфортная жизнь Все объекты построены с соблюдением высоких стандартов качества, чтобы обеспечить комфорт и энергоэффективность. Оснащение включает в себя моторизованные жалюзи, усиленные входные двери и аэротермальные системы для нагрева воды. Дополнительные характеристики включают подготовку к установке канальной системы кондиционирования и ванные комнаты, оборудованные туалетными столиками и зеркалами. Квартиры располагают наземной парковкой и подземным хранилищем, а виллы — частной парковкой на территории участка. Общие зоны, созданные для отдыха Жители могут пользоваться большим общим бассейном площадью 150 м², окруженным ландшафтными садами, что создает идеальное пространство для отдыха, общения и наслаждения солнечным климатом. Возвышенное расположение комплекса обеспечивает уединение и открывает прекрасный вид на окружающую природу. Выгодное расположение рядом с городом, аэропортом и побережьем Corvera Hills Golf занимает стратегическое положение в регионе Мурсия. Международный аэропорт Мурсии находится всего в 10 км, центр города Мурсия — в 20 км, а пляжи Коста-Калида — примерно в 30 км. Идеальный образ жизни и инвестиционная возможность в Мурсии Этот комплекс предлагает отличную возможность насладиться спокойным образом жизни в природной среде с современными домами и отличной транспортной доступностью. Свяжитесь с нами сегодня, чтобы получить дополнительную информацию или договориться о просмотре и найти свой новый дом в Corvera Hills Golf. 271
Окрестности

Не нашли то, что искали? Отправьте заявку на info@europisol.com. Мы подберем жилье индивидуально для вас. Для покупателя услуги агентства по подбору недвижимости бесплатны!

Внимание! Информация указана по данным застройщика на момент публикации. Уточнить наличие объектов недвижимости и актуальные цены можно, оставив заявку по адресу: info@europisol.com

Elena Suslova

+ 34 647173382 (ES, RU) viber, whatsapp, telegram

info@europisol.com

Свяжитесь с нами, и мы поможем вам в вашем выборе!
Подпишитесь на наши рассылки