Новая вилла в Torrevieja

ID: N8628

От 595 000 €
Новая вилла в Torrevieja
Новая вилла в Torrevieja
Основные детали
Ref N8628
Тип объекта Вилла
Город Torrevieja
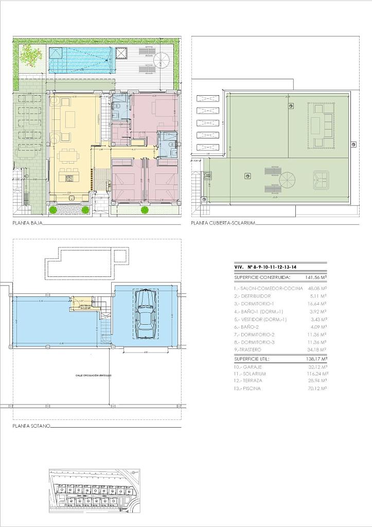
Площадь жилая 141 м²
Площадь участка 247 м²
Цена  от 595 000 €
Спальни 3
Ванные 2
Характеристики
Новая Недвижимость
Частный сад
Бассейн
Новые виллы на продажу в Торревьехе - 2 км от моря Откройте для себя эти потрясающие новые виллы, расположенные в востребованном районе Торревьехи, всего в 2 км от побережья Средиземного моря. Предлагая идеальное сочетание роскоши, комфорта и практичности, эти дома с 3 спальнями и 2 ванными комнатами предназначены для тех, кто ищет изысканный стиль жизни со всеми преимуществами прибрежного проживания. Просторный дизайн и высококачественная отделка Эти одноэтажные виллы были продуманно спроектированы для максимального комфорта и простоты проживания. Благодаря открытой планировке они предоставляют достаточно места для отдыха и развлечений. Виллы имеют высококачественную отделку, включая алюминиевые окна с терморазрывом, двойное остекление Climalit и предварительную установку канального кондиционера. Для большего удобства в домах предусмотрены электрические жалюзи, современные ванные комнаты с душевыми поддонами из смолы и встроенными черными смесителями, а также частная парковка в подземном гараже с дополнительным местом для хранения. Частный бассейн и солярий с потрясающими видами Выйдите на улицу в свой частный оазис, где вы сможете насладиться роскошью частного бассейна в собственном саду. С солярия на крыше открывается захватывающий вид на соляную лагуну Ла Мата и окрестности, а каждый вечер можно любоваться великолепными закатами. Вилла расположена в самой высокой части Торревьехи, что обеспечивает уединение и впечатляющие виды. Эксклюзивные коммунальные удобства На территории комплекса есть несколько мест общего пользования, включая ландшафтные сады, гимнастическую площадку и площадку для игры в петанк, которые идеально подходят как для отдыха, так и для релаксации. Независимо от того, наслаждаетесь ли вы временем в одиночестве или общаетесь с соседями, эта вилла обеспечивает идеальную среду как для спокойной жизни, так и для яркого общения. Удачное расположение в Торревьехе Эти виллы находятся в окружении основных услуг и возможностей для отдыха. Аэропорт Аликанте-Эльче находится всего в 45 минутах езды на автомобиле (43 км), что делает международные поездки удобными. Всего в 3 км находится торговый центр Habaneras, предлагающий разнообразные магазины, рестораны и развлекательные заведения. Насладитесь средиземноморским стилем жизни В Торревьехе, расположенной на южном побережье Аликанте, более 300 солнечных дней в году и приятная среднегодовая температура 20°C. Город славится своими прекрасными пляжами, оживленными набережными и вкуснейшей средиземноморской кухней, что делает его идеальным местом как для отдыха, так и для приключений. Благодаря семейному досугу и богатому культурному наследию Торревьеха обещает полноценный образ жизни круглый год. Дом вашей мечты ждет вас Не упустите шанс стать владельцем роскошной виллы в одном из самых привлекательных прибрежных городов Испании. Независимо от того, ищете ли вы постоянное место жительства или место для отдыха, этот эксклюзивный комплекс предлагает идеальные условия для того, чтобы испытать лучшие качества средиземноморской жизни. Запланируйте просмотр сегодня и сделайте первый шаг к воплощению своей мечты в реальность! 271
Окрестности

Не нашли то, что искали? Отправьте заявку на info@europisol.com. Мы подберем жилье индивидуально для вас. Для покупателя услуги агентства по подбору недвижимости бесплатны!

Внимание! Информация указана по данным застройщика на момент публикации. Уточнить наличие объектов недвижимости и актуальные цены можно, оставив заявку по адресу: info@europisol.com

Elena Suslova

+ 34 647173382 (ES, RU) viber, whatsapp, telegram

info@europisol.com

Свяжитесь с нами, и мы поможем вам в вашем выборе!
Подпишитесь на наши рассылки