Новая вилла в Moraira_Teulada

ID: N6425

От 1 795 000 €
Новая вилла в Moraira_Teulada
Новая вилла в Moraira_Teulada
Основные детали
Ref N6425
Тип объекта Вилла
Город Moraira_Teulada
Площадь жилая 346 м²
Площадь участка 13000 м²
Цена  от 1 795 000 €
Спальни 4
Ванные 4
Характеристики
Новая Недвижимость
Частный сад
Бассейн
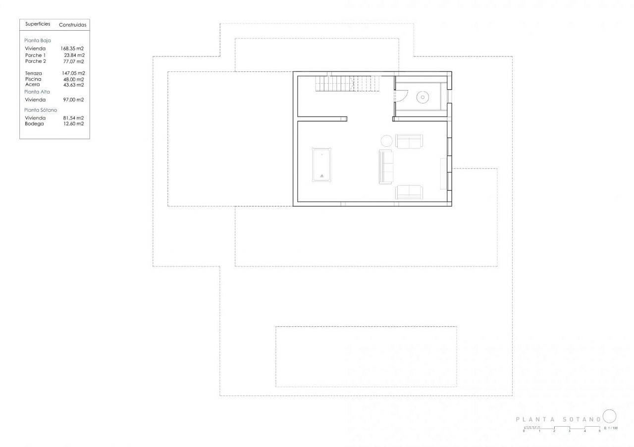
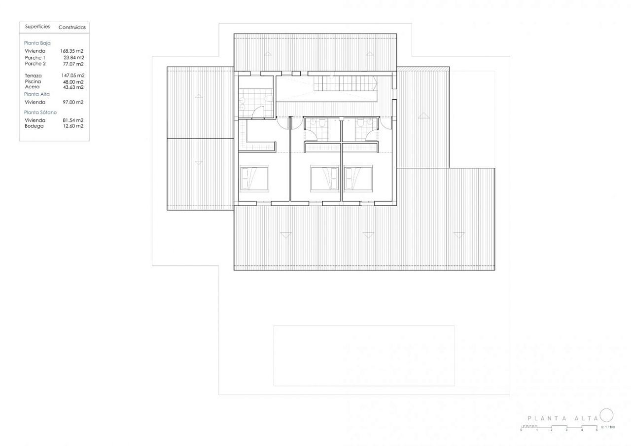
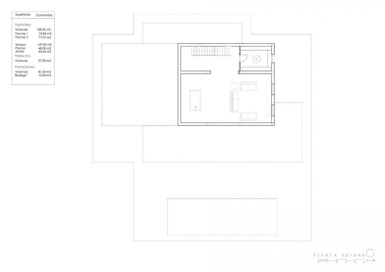
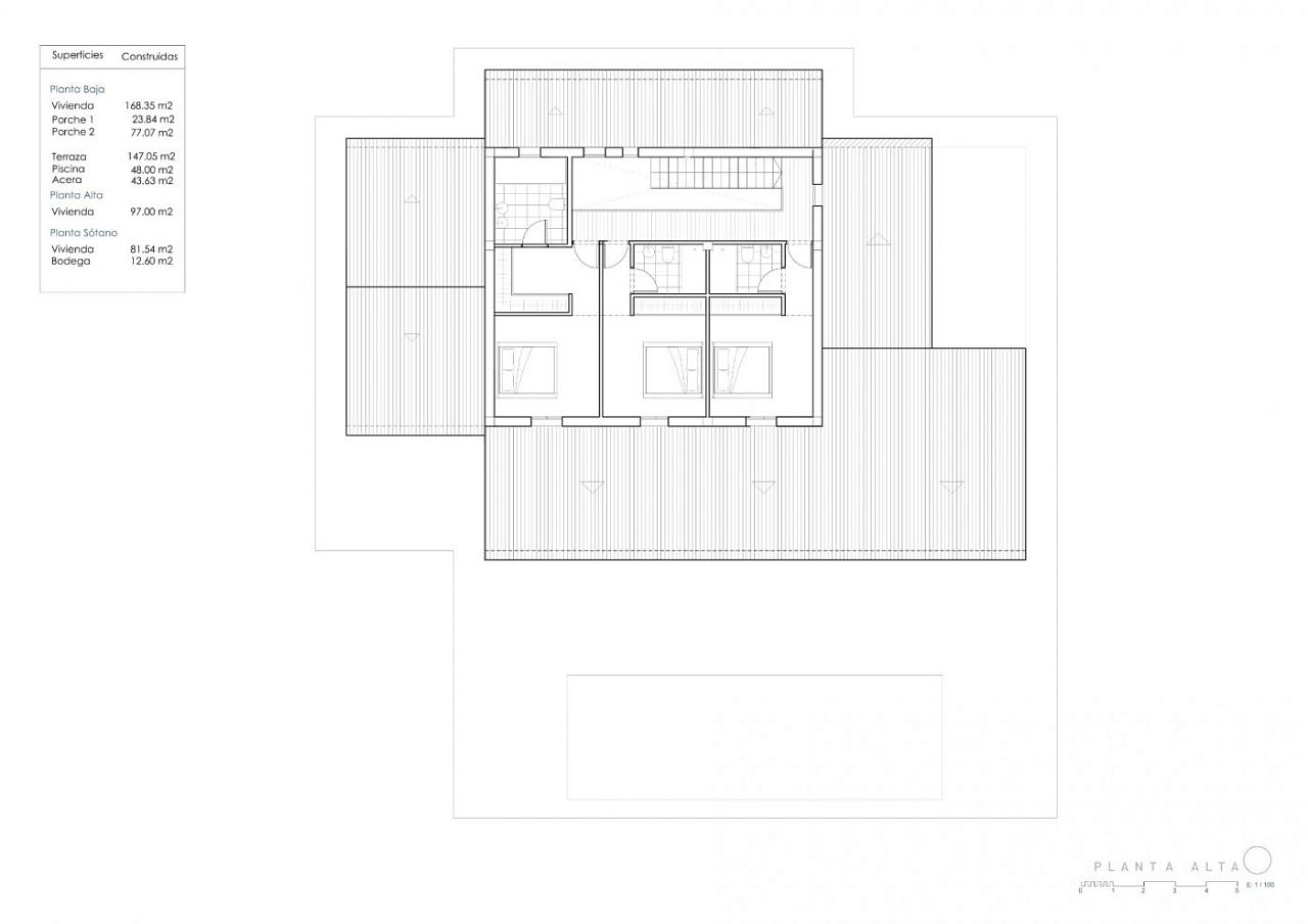
Недавно построенная вилла в Теуладе с видом на горы На первом этаже находится большая гостиная-столовая и кухня открытого плана, главная спальня с гардеробной и ванной комнатой, передняя терраса с выходом к бассейну. На втором этаже находятся 3 спальни со встроенными шкафами, 3 ванные комнаты. Также здесь есть подвал площадью 81 м2 с винным погребом. Вилла будет построена с использованием высококачественных материалов. Кухня будет выбрана клиентом, кухонные шкафы, столешница и техника. Кондиционеры с системой климат-контроля (конденс) в гостиных и спальнях. Бренд Mitsubishi. Бассейн будет построен с открытым душем (подключение горячей/холодной воды). Автоматические въездные ворота для автомобилей с дистанционным управлением и автоматическая пешеходная дверь. Сад по выбору клиента. Морайра - небольшой город с хорошими ресторанами, барами и множеством супермаркетов. Рядом с городом есть очень приятный пляж, который отлично подходит для семейного отдыха. С набережной открывается великолепный вид на Penon Ifach через залив в Кальпе. Стоит проехать по прибрежной дороге, чтобы насладиться захватывающими видами. Морайра расположена примерно в 1 часе 15 минутах езды на север по шоссе A7 от аэропорта Аликанте, и добраться до нее довольно легко. Примерно такое же расстояние или чуть меньше на юг от аэропорта Валенсии. 271
Окрестности

Не нашли то, что искали? Отправьте заявку на info@europisol.com. Мы подберем жилье индивидуально для вас. Для покупателя услуги агентства по подбору недвижимости бесплатны!

Внимание! Информация указана по данным застройщика на момент публикации. Уточнить наличие объектов недвижимости и актуальные цены можно, оставив заявку по адресу: info@europisol.com

Elena Suslova

+ 34 647173382 (ES, RU) viber, whatsapp, telegram

info@europisol.com

Свяжитесь с нами, и мы поможем вам в вашем выборе!
Подпишитесь на наши рассылки