Nuevo villa en San Miguel de Salinas

ID: N7348

De 1 000 000 €
Nuevo villa en San Miguel de Salinas
Nuevo villa en San Miguel de Salinas
Detalles principales
Ref N7348
Tipo de propiedad Villa
Ciudad San Miguel de Salinas
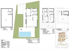
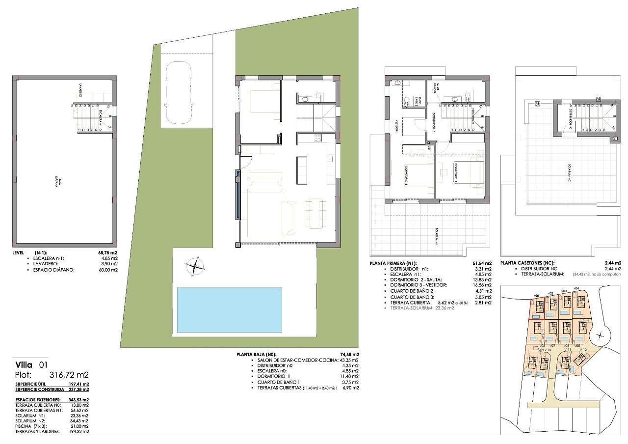
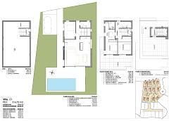
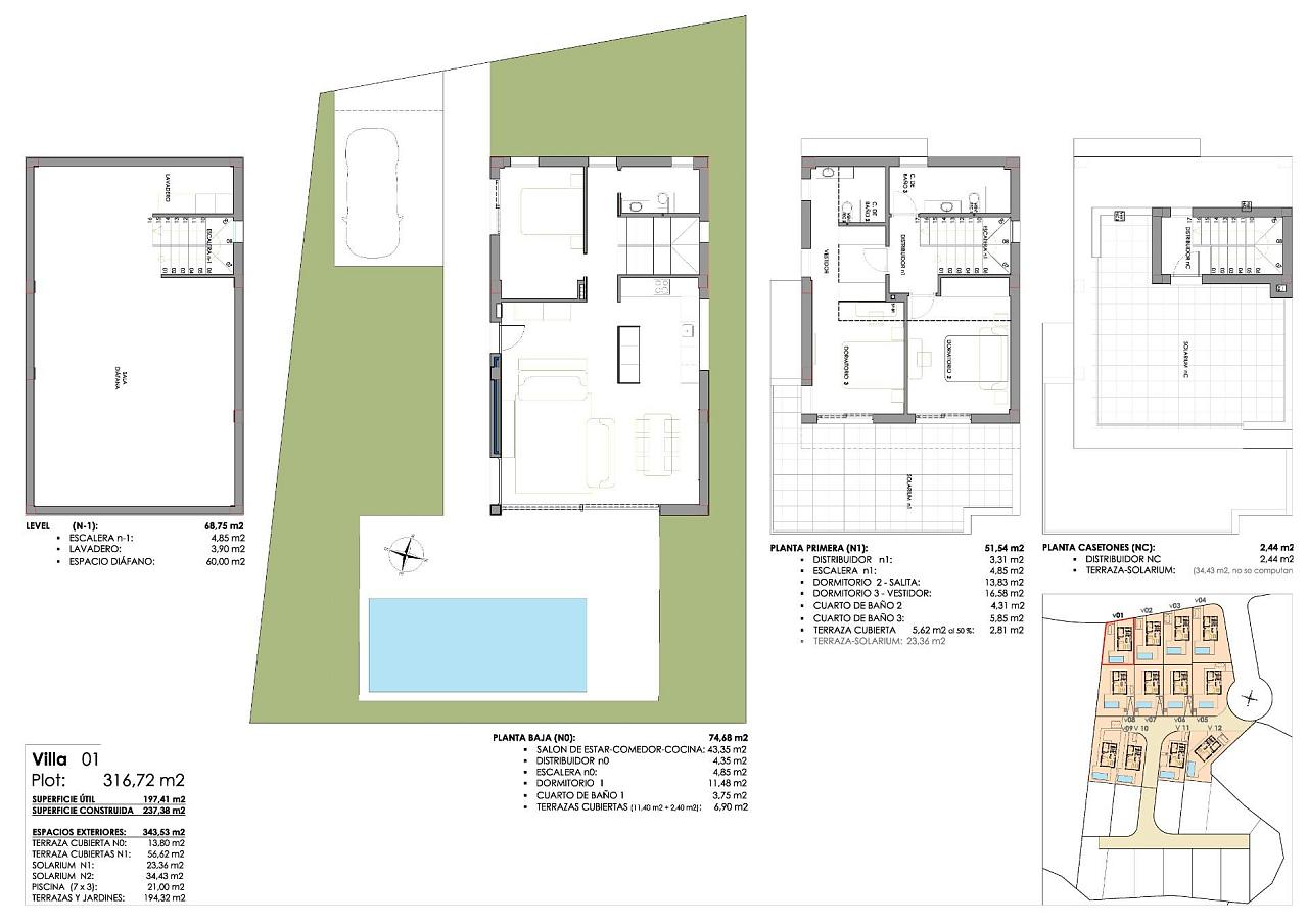
Vivienda 237 M2
Parcela 350 M2
Precio  de 1 000 000 €
Dormitorios 4
Baños 4
Características
Nueva promocion
Jardin privado
Piscina
VILLAS DE OBRA NUEVA EN SAN MIGUEL DE SALINAS Exclusivo complejo residencial de obra nueva que ofrece villas de lujo con parcelas desde 300 m2 y una impresionante piscina de 8x3,5m. Sótano y solarium opcionales. Estas modernas viviendas ofrecen 3 dormitorios, 3 baños, un amplio salón-comedor y una cocina totalmente equipada, además de jardín, y piscina. Las villas destacan por sus espacios luminosos y abiertos, que ofrecen unas vistas excepcionales y una distribución que optimiza al máximo cada rincón de la vivienda. Acabados e interiores de alta calidad se funden en un concepto contemporáneo del lujo, combinando la elegancia, el confort y el refinamiento que desean los compradores. En el diseño y construcción de este complejo residencial se han tenido en cuenta aspectos fundamentales como la eficiencia energética y el uso de materiales de primera calidad, garantizando así un estilo de vida sostenible y duradero. San Miguel de Salinas es un municipio de la Comunidad Valenciana, España. Situado al sur de la provincia de Alicante, en la comarca de la Vega Baja del Segura cerca de la Región de Murcia. San Miguel de Salinas situado cerca de los campos de golf Las Colinas y Campoamor, ofrece unas vistas excepcionales de las lagunas de Torrevieja y La Mata. El aeropuerto de Alicante se encuentra a 35 minutos en coche y el aeropuerto de Murcias Corvera a 1 hora en coche. 271
Alrededores

Si no puedes encontrar lo que buscas, contacta con nosotros. info@europisol.com.

Atención! Esta información fue obtenida directamente del constructor en el momento de la publicación. Para consultas sobre disponibilidad y precios actualizados de las viviendas envia un email a : info@europisol.com

Elena Suslova

+ 34 647173382 (ES, RU) viber, whatsapp, telegram

info@europisol.com

¡Contáctanos y te ayudaremos elegir tu vivienda!