Nuevo villa en Pinoso

ID: N8294

De 295 000 €
Nuevo villa en Pinoso
Nuevo villa en Pinoso
Detalles principales
Ref N8294
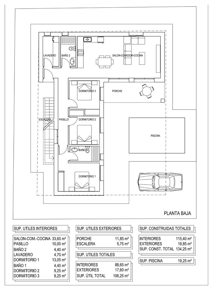
Tipo de propiedad Villa
Ciudad Pinoso
Vivienda 127 M2
Parcela 15658 M2
Precio  de 295 000 €
Dormitorios 3
Baños 2
Características
Nueva promocion
Jardin privado
VILLAS DE OBRA NUEVA EN PINOSO Obra Nueva Villas independientes modernas que se pueden construir en parcelas rústicas o urbanas tenemos una amplia gama disponible en la zona de Pinoso: - 3 dormitorios, 2 baños - Piscina privada - Instalación completa de aire acondicionado - Cocina totalmente equipada - Gran selección de materiales de calidad - Luz y agua de red - 4 paneles solares incluidos - Etiqueta energética AA - Parcela de 15.658 m² en Pinoso - Parcela vallada de 3.000 m² de fácil mantenimiento - Puerta corredera motorizada En las parcelas rústicas se vallarán unos 3.000 m2 del total de la parcela y las casas se entregarán con unos 1.000 m2 de grava alrededor de la casa. La casa dispone de piscina privada y placas solares fotovoltaicas para el suministro eléctrico. Hay varias parcelas rústicas a elegir en diferentes ubicaciones, cada una con un precio diferente (en los precios publicados en este anuncio se ha considerado una parcela con un valor de 40.000 eur, si el comprador elige otra parcela, el precio final se recalculará en consecuencia). El plazo de entrega es de 8 meses desde la concesión de la licencia de obras. Se adquiere en régimen de autopromoción: el comprador realiza pagos a cuenta del precio a medida que el constructor ejecuta la obra.
Alrededores

Si no puedes encontrar lo que buscas, contacta con nosotros. info@europisol.com.

Atención! Esta información fue obtenida directamente del constructor en el momento de la publicación. Para consultas sobre disponibilidad y precios actualizados de las viviendas envia un email a : info@europisol.com

Elena Suslova

+ 34 647173382 (ES, RU) viber, whatsapp, telegram

info@europisol.com

¡Contáctanos y te ayudaremos elegir tu vivienda!