Nuevo villa en La Manga Club

ID: SP0875

De 840 000 €
Nuevo villa en La Manga Club
Nuevo villa en La Manga Club
Detalles principales
Ref SP0875
Tipo de propiedad Villa
Ciudad La Manga Club
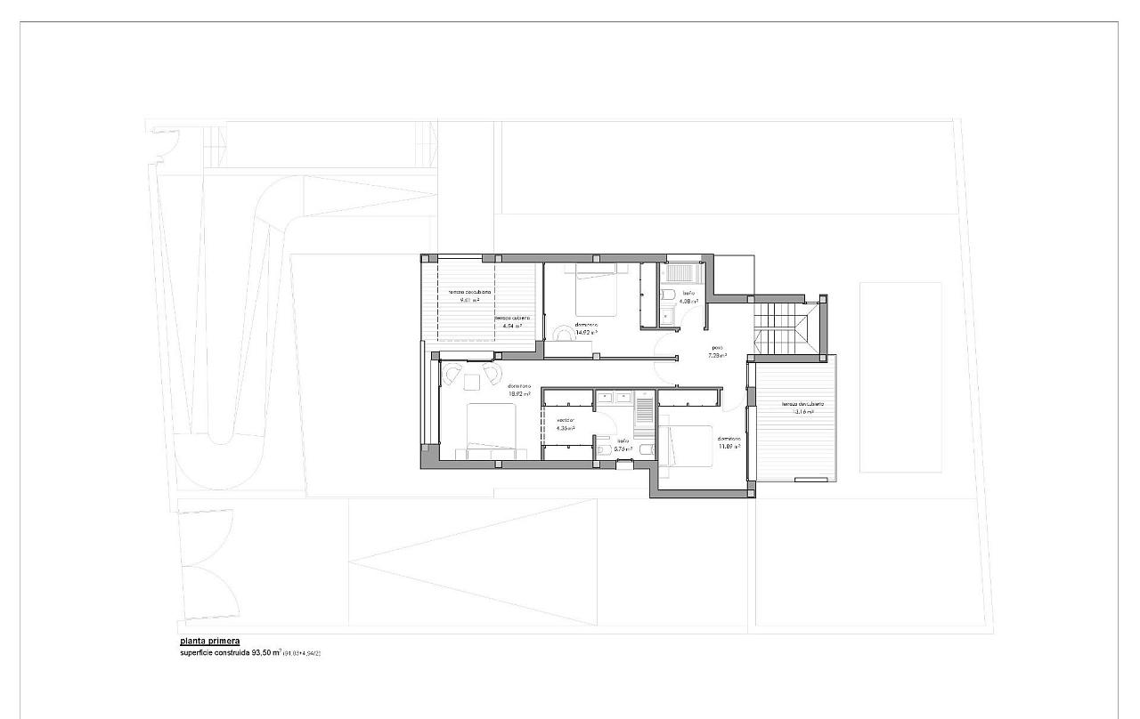
Vivienda 248 M2
Parcela 570 M2
Precio  de 840 000 €
Dormitorios 4
Baños 3
Características
Nueva promocion
Jardin privado
Piscina
Villas de nueva construcción en venta en La Manga Club - Vida de lujo en un complejo de prestigio Villas modernas y espaciosas en una ubicación céntrica Descubra las impresionantes villas de nueva construcción a la venta en La Manga Club, diseñadas cuidadosamente para satisfacer las necesidades de la vida moderna. Estas lujosas propiedades ofrecen distribuciones prácticas, acabados de alta gama y acceso a todas las comodidades de este complejo de renombre mundial. Situada en el corazón de La Manga Club, esta exclusiva urbanización cuenta con 29 amplias parcelas de entre 500 m² y 746 m². Los compradores pueden elegir villas de 2, 3 ó 4 dormitorios, con piscina privada, jardines y aparcamiento vigilado. Tanto si busca una casa de vacaciones como una residencia permanente, estas villas ofrecen una combinación perfecta de confort, estilo y comodidad. Características de primera y acabados de alta calidad Todas las villas están construidas con los más altos estándares, incorporando elementos de diseño moderno y tecnología avanzada para el máximo confort. Las características clave incluyen: Carpintería de aluminio de alto rendimiento con rotura de puente térmico (CORTIZO o similar). Doble acristalamiento aislante para mayor eficiencia energética y confort. Sistemas domóticos para controlar la iluminación, la electricidad y la electrónica. Sistemas de aerotermia para calefacción, refrigeración y agua caliente sanitaria. Ventilación de alta eficiencia con sistemas mecánicos controlados. Elementos de seguridad, incluidos sistemas de alarma y videovigilancia preinstalados. Ubicación exclusiva - La Manga Club Resort La Manga Club es uno de los principales complejos deportivos y de ocio de Europa, que ofrece un estilo de vida incomparable en un impresionante entorno mediterráneo. Con una extensión de 560 hectáreas, el complejo está rodeado de parques naturales y playas vírgenes que ofrecen un entorno impresionante y sol todo el año. Los residentes disfrutan de acceso a servicios de primera clase, entre los que se incluyen Tres campos de golf de 18 hoyos El Racquets Club, con 28 pistas de tenis y pádel Instalaciones de fitness y spa en el Grand Hyatt La Manga Club Golf & Spa Acceso privado a la playa y excelentes opciones gastronómicas Campos de fútbol FIFA para los amantes del deporte Excelente conectividad y atracciones cercanas La Manga Club goza de una ubicación perfecta con excelentes conexiones de transporte a las principales ciudades europeas: Aeropuerto de Corvera - 50 km (aprox. 35 minutos en coche) Aeropuerto de Alicante - 100 km (aprox. 1 hora en coche) Otros puntos de interés cercanos incluyen: Playas - A menos de 3 km de la costa mediterránea. Campos de golf - En las instalaciones hay tres campos de campeonato Centros comerciales - Situados a 10-15 km de distancia para todas sus necesidades comerciales Puertos deportivos - Accesibles a menos de 20 km para los amantes de la vela y los deportes acuáticos El lugar ideal para una vida de lujo La Manga Club ofrece una comunidad vibrante y segura, ideal para familias, jubilados y entusiastas del golf. Disfrute de un estilo de vida tranquilo y privado con acceso a instalaciones de primera clase, todo ello rodeado de belleza natural y comodidades modernas. Experimente la vida de lujo en su máxima expresión con estas villas de nueva construcción en La Manga Club. No pierda esta oportunidad de poseer una vivienda en uno de los complejos turísticos más prestigiosos de Europa. Póngase en contacto con nosotros ahora para obtener más detalles o para programar una visita. 271
Alrededores

Si no puedes encontrar lo que buscas, contacta con nosotros. info@europisol.com.

Atención! Esta información fue obtenida directamente del constructor en el momento de la publicación. Para consultas sobre disponibilidad y precios actualizados de las viviendas envia un email a : info@europisol.com

Elena Suslova

+ 34 647173382 (ES, RU) viber, whatsapp, telegram

info@europisol.com

¡Contáctanos y te ayudaremos elegir tu vivienda!