Nuevo villa en Fuente Álamo

ID: N6879

De 320 000 €
Nuevo villa en Fuente Álamo
Nuevo villa en Fuente Álamo
Detalles principales
Ref N6879
Tipo de propiedad Villa
Ciudad Fuente Álamo
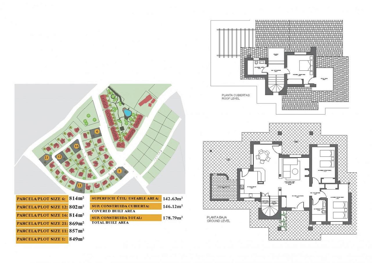
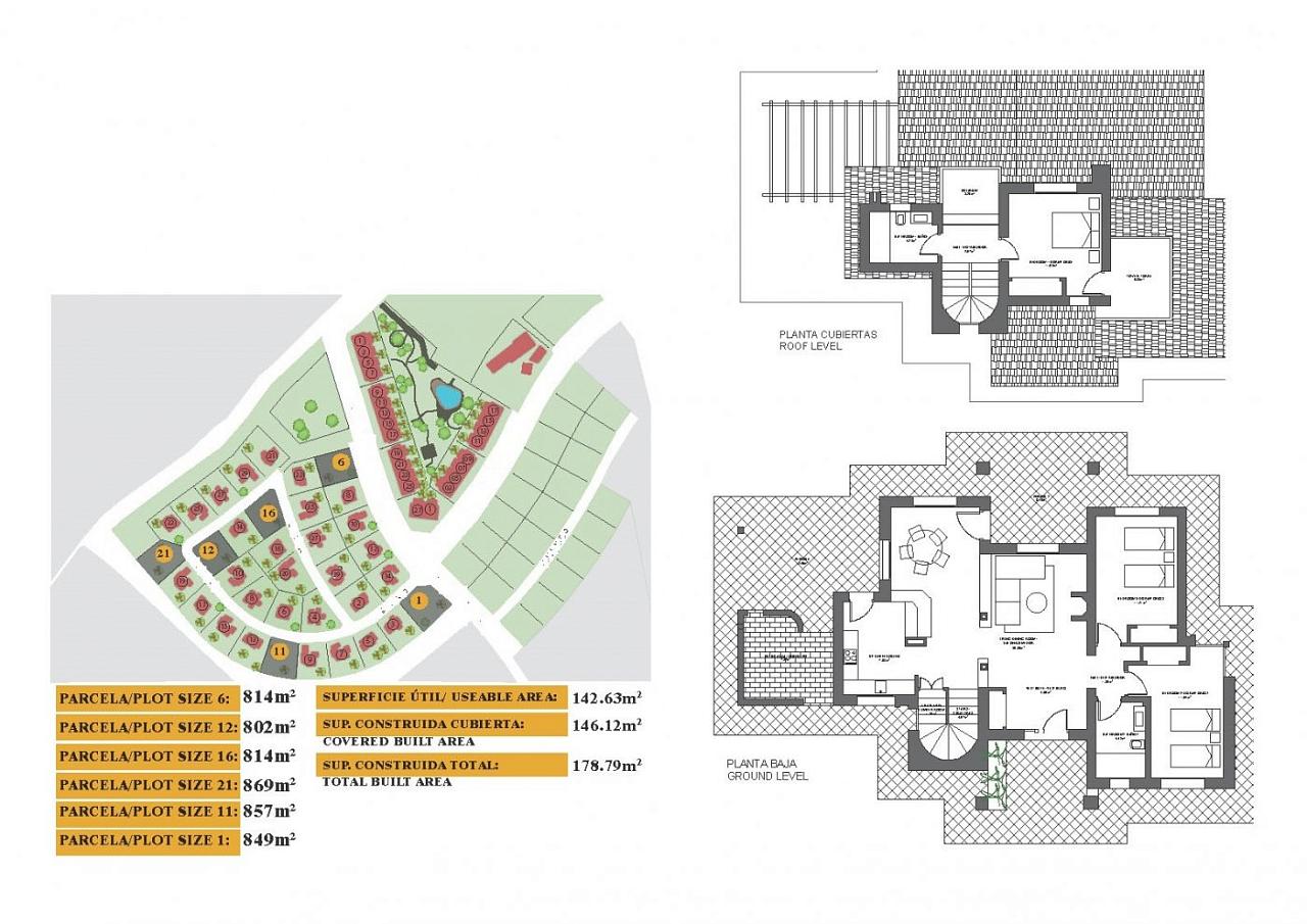
Vivienda 178 M2
Parcela 850 M2
Precio  de 320 000 €
Dormitorios 3
Baños 2
Características
Nueva promocion
Jardin privado
VILLA LLAVE EN MANO EN FUENTE ALAMO, MURCIA Residencial de adosados, villas independientes y pareados en Fuente Álamo, Murcia. Hay siete modelos diferentes de casas para elegir, diseñados para adaptarse al gusto de todos. Diseños rústicos combinados con materiales de primera calidad y un enfoque en el espacio de vida cómodo hay algo para todos. Los residentes de esta comunidad privada de hermosas y amplias casas también podrán disfrutar de sus propios jardines y piscinas comunitarias. Esta villa de diseño inusual tiene 3 dormitorios y 2 baños, cocina independiente, salón con puertas de patio que dan al porche cubierto. Hay opciones para una piscina privada con un coste adicional. Fuente Álamo de Murcia es una localidad y municipio de la Región de Murcia, en el sur de España. Está situada a 22 km al noroeste de Cartagena y a 35 km al suroeste de Murcia. La ciudad se encuentra en la cuenca del Mar Menor, rodeada por las sierras de Algarrobo, Los Gómez, Los Victorias y el Carrascoy. El agua de estas montañas fluye hacia la Rambla de Fuente Álamo y luego hacia el Mar Menor. Fuente Álamo se encuentra a 30 minutos del aeropuerto de Murcia - Corvera. 271
Alrededores

Si no puedes encontrar lo que buscas, contacta con nosotros. info@europisol.com.

Atención! Esta información fue obtenida directamente del constructor en el momento de la publicación. Para consultas sobre disponibilidad y precios actualizados de las viviendas envia un email a : info@europisol.com

Elena Suslova

+ 34 647173382 (ES, RU) viber, whatsapp, telegram

info@europisol.com

¡Contáctanos y te ayudaremos elegir tu vivienda!