Nuevo villa en Daya Nueva

ID: N9526

De 320 000 €
Nuevo villa en Daya Nueva
Nuevo villa en Daya Nueva
Detalles principales
Ref N9526
Tipo de propiedad Villa
Ciudad Daya Nueva
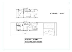
Vivienda 92 M2
Parcela 200 M2
Precio  de 320 000 €
Dormitorios 2
Baños 2
Características
Nueva promocion
Jardin privado
Piscina
VILLA PAREADA DE OBRA NUEVA EN DAYA NUEVA Villa pareada de 2 plantas de obra nueva en Daya Nueva. Villa con 2 dormitorios, 2 baños, cocina americana con salón, armarios empotrados, jardín privado con piscina y plaza de aparcamiento. Propiedad situada a pocos minutos a pie del centro del pueblo con restaurantes, bares y tiendas. Daya Nueva es un pequeño pueblo idílico rodeado de paisajes pintorescos, es un pueblo rural rodeado de naranjos y limoneros. Tiene un ayuntamiento, una piscina exterior sólo en verano, algunos bares y restaurantes y una serie de parques repartidos por las zonas de urbanización en el borde del pueblo. La playa de Guardarmar está a 10 minutos en coche y el aeropuerto de Alicante a sólo 25 minutos. Los campos de golf de La Marquesa Golf en Ciudad Quesada y La Finca Golf en Algorfa están a 10 minutos en coche.
Alrededores

Si no puedes encontrar lo que buscas, contacta con nosotros. info@europisol.com.

Atención! Esta información fue obtenida directamente del constructor en el momento de la publicación. Para consultas sobre disponibilidad y precios actualizados de las viviendas envia un email a : info@europisol.com

Elena Suslova

+ 34 647173382 (ES, RU) viber, whatsapp, telegram

info@europisol.com

¡Contáctanos y te ayudaremos elegir tu vivienda!