Nuevo villa en Calpe

ID: N5613

De 1 850 000 €
Nuevo villa en Calpe
Nuevo villa en Calpe
Detalles principales
Ref N5613
Tipo de propiedad Villa
Ciudad Calpe
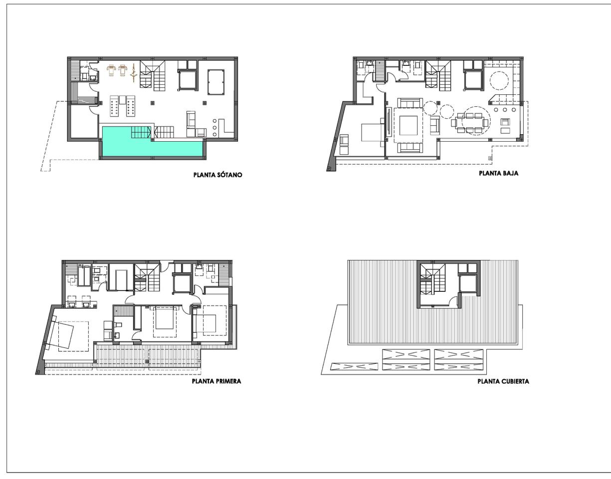
Vivienda 410 M2
Parcela 660 M2
Precio  de 1 850 000 €
Dormitorios 4
Baños 6
Características
Nueva promocion
Jardin privado
Piscina
VILLA DE LUJO VISTAS AL MAR Villa de lujo moderna e independiente con impresionantes vistas al mar La vivienda dispone de ascensor para mayor comodidad que conecta las 3 plantas de la vivienda. Desde todos los dormitorios y desde el salón se pueden disfrutar de unas espectaculares vistas al mar. Su infinity pool te permitirá tomar un baño relajante mientras sientes cómo te fundes con el horizonte, el mar Mediterráneo y su cielo azul. La promoción se sitúa a menos de 2 km de la playa y del centro de Calpe, con todos los servicios necesarios. El aeropuerto de Alicante se encuentra a 70 km y Benidorm con su gran oferta de ocio a tan sólo 20 km. Desde Calpe se puede acceder a una oferta variada de campos de golf, colegios internacionales, puertos y deportes náuticos, variada gastronomía y todo ello en un clima con 300 días de sol al año y una temperatura media anual de 20ºC. 271
Alrededores

Si no puedes encontrar lo que buscas, contacta con nosotros. info@europisol.com.

Atención! Esta información fue obtenida directamente del constructor en el momento de la publicación. Para consultas sobre disponibilidad y precios actualizados de las viviendas envia un email a : info@europisol.com

Elena Suslova

+ 34 647173382 (ES, RU) viber, whatsapp, telegram

info@europisol.com

¡Contáctanos y te ayudaremos elegir tu vivienda!