Nuevo apartamento en Rojales

ID: N8233

De 355 900 €
Nuevo apartamento en Rojales
Nuevo apartamento en Rojales
Detalles principales
Ref N8233
Tipo de propiedad Apartamento
Ciudad Rojales
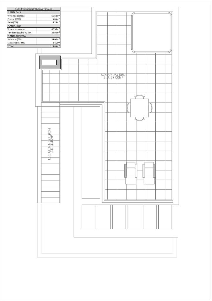
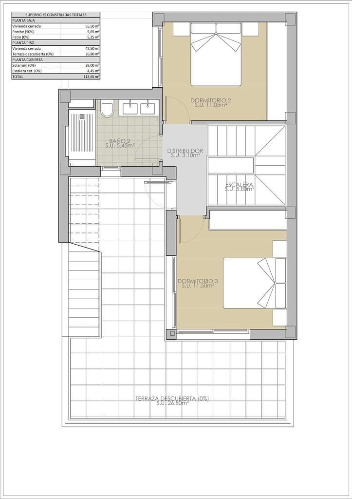
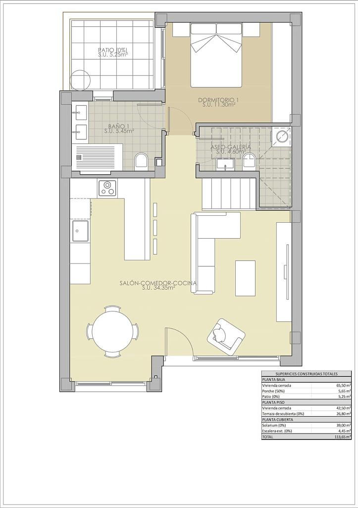
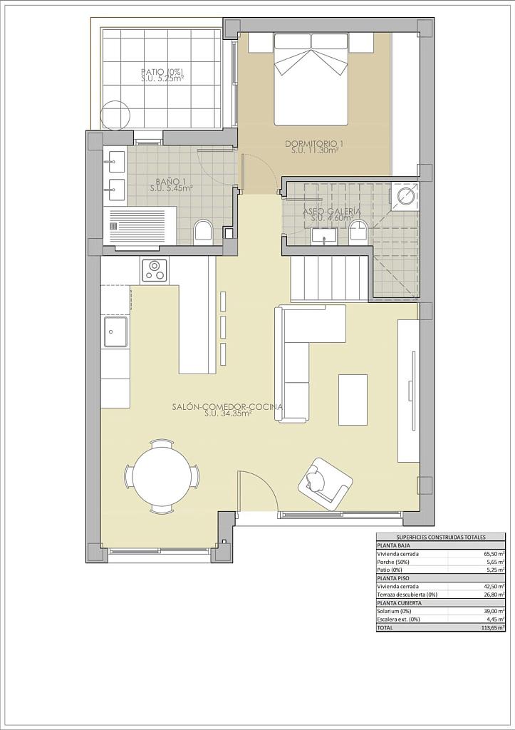
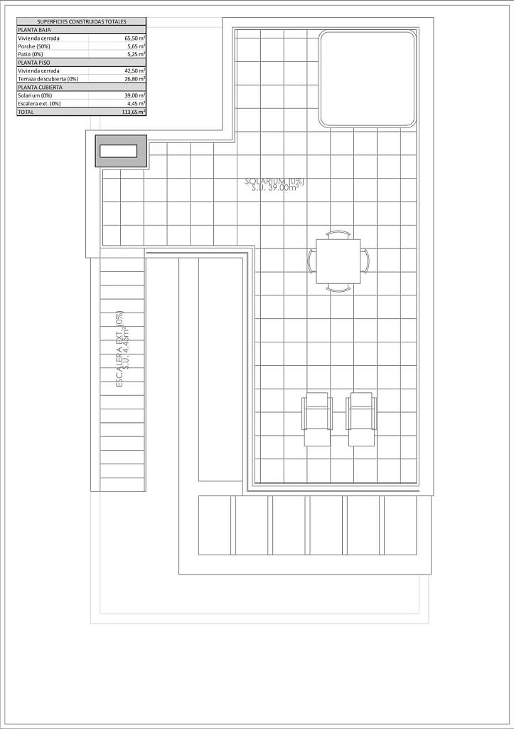
Vivienda 113 M2
Parcela 124 M2
Precio  de 355 900 €
Dormitorios 3
Baños 2
Características
Nueva promocion
Jardin privado
ADOSADOS DE OBRA NUEVA EN ROJALES Residencial moderno de obra nueva de adosados y pareados en Rojales. Las propiedades tienen 3 dormitorios, 2 baños, aseo, cocina americana con sala de estar y acceso directo a la terraza, jardín privado con plaza de aparcamiento. Una opción para un solarium y una piscina privada a un costo adicional. Rojales es un pueblo encantador con todos los servicios como supermercados, farmacias, bancos, restaurantes y parque natural situado muy cerca. Hay 3 campos de golf cerca y las playas de bandera azul están a sólo 10 minutos en coche, así como parques acuáticos en las cercanías de Rojales y Torrevieja. Los aeropuertos de Alicante y Murcia están a 45 minutos en coche.
Alrededores

Si no puedes encontrar lo que buscas, contacta con nosotros. info@europisol.com.

Atención! Esta información fue obtenida directamente del constructor en el momento de la publicación. Para consultas sobre disponibilidad y precios actualizados de las viviendas envia un email a : info@europisol.com

Elena Suslova

+ 34 647173382 (ES, RU) viber, whatsapp, telegram

info@europisol.com

¡Contáctanos y te ayudaremos elegir tu vivienda!