New apartment in Torrevieja

ID: N9381

From 290 000 €
New apartment in Torrevieja
New apartment in Torrevieja
Main details
Ref N9381
Property type Apartment
The City Torrevieja
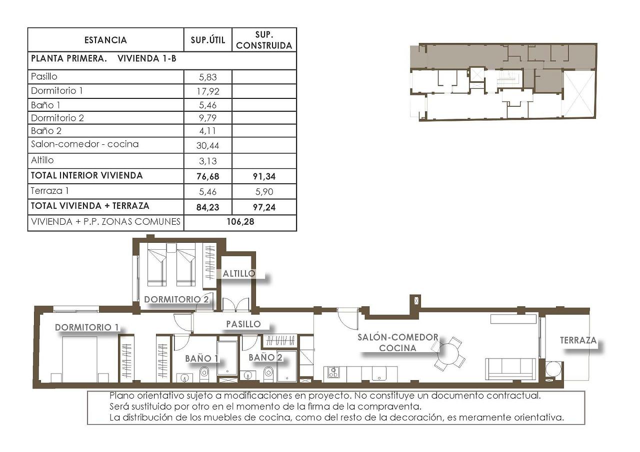
living place 91 M2
Price  from 290 000 €
Bedrooms 2
Bathrooms 2
Characteristics
New
Pool
Modern New Build Apartments in the Heart of Torrevieja Prime Location Just 150 m from the Sea This exceptional new development is located in the very centre of Torrevieja, just 150 m from the natural swimming pools and seafront promenade, and only 500 m from Playa del Cura. Surrounded by an extensive range of services including shops, supermarkets, parks, cafés and restaurants, the area offers everything you need within a short walk. Its combination of urban convenience and coastal tranquillity makes it one of the most attractive residential areas in the city. Contemporary Apartments With 1 and 2 Bedrooms The development offers modern apartments featuring 1 or 2 bedrooms and 1 or 2 bathrooms, including two exclusive penthouses with private solarium, barbecue and private pool. All homes are designed with open layouts that maximise natural light, incorporating spacious terraces and stylish American style kitchens. Each apartment includes a fully equipped kitchen with appliances, complete bathrooms with furniture, shower screens and underfloor heating, as well as interior lighting. There is also preinstallation for ducted air conditioning, ensuring year round comfort. Attractive Communal Areas for Relaxation Residents can enjoy excellent communal facilities designed for wellbeing and leisure. The ground floor features a refreshing communal pool and a relaxing sauna. The rooftop terrace offers a shared solarium, ideal for sunbathing and taking in the Mediterranean atmosphere. Enjoy a Unique Coastal and Natural Environment Torrevieja is renowned for its mild Mediterranean climate, with an average annual temperature of 20 ºC, perfect for year round living. The city is home to the famous salt lakes and the protected Natural Park of La Mata and Torrevieja, located just 4 km from the development. With its vibrant pink and green lagoons, scenic walking routes and diverse wildlife, it provides a healthy and inspiring natural setting. Distances to Key Points of Interest Puerto Deportivo de Torrevieja 1 km Parque Natural de La Mata 4 km Villamartin Golf 8 km Alicante Airport 45 km Murcia Airport 60 km Live the Mediterranean Lifestyle Secure your modern home in one of the most sought after coastal cities in the Costa Blanca. Contact us today to schedule a visit and reserve your place in this outstanding new development. 271
Outside

If you cannot find what you are looking for, please send your request to info@europisol.com. Agency services for selection of real estate are free.

Pay attention to: The information is based on the developer's data at the time of publication. To clarify the availability of real estate objects and current prices, place an order with: info@europisol.com

Elena Suslova

+ 34 647173382 (ES, RU) viber, whatsapp, telegram

info@europisol.com

Contact with us, we will help you find your house!