New villa in Polop

ID: CSR292

From 470 000 €
New villa in Polop
New villa in Polop
Main details
Ref CSR292
Property type Villa
The City Polop
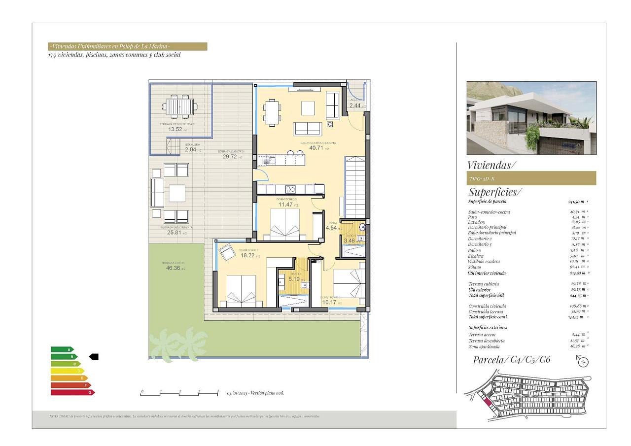
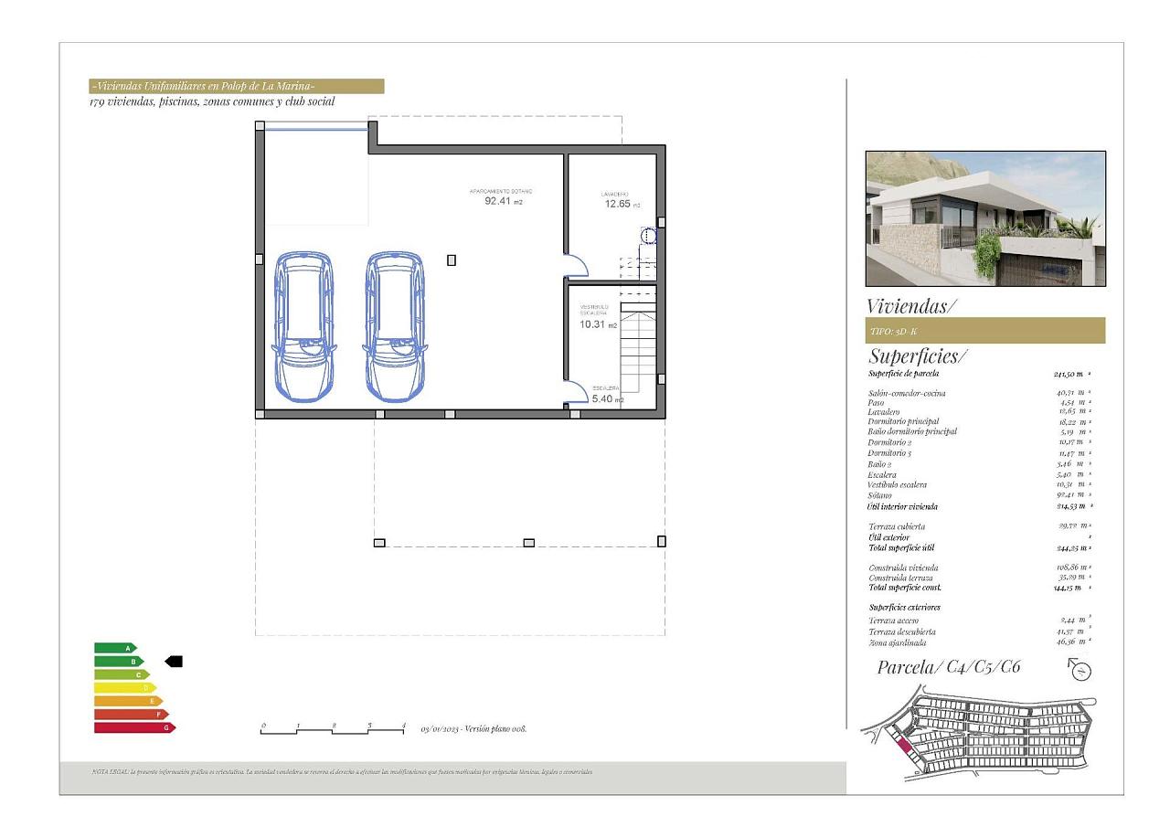
living place 200 M2
Plot 241 M2
Price  from 470 000 €
Bedrooms 3
Bathrooms 2
Characteristics
New
Private garden
Pool
Brand new independent villas with sea views at Polop (Alicante province) Located 10km away from Benidorm beaches and night life and romantic Altea village. This residential benefits from wonderful sea views, comunal pool and social area and houses can be personalized with some extras like private pool, private solarium, underground garage, etc. Different models to choose from depending on your needs and budget, with 2 or 3 bedrooms. Residential has been designed with most of the houses in one level so we avoid stairs inside the houses and make them more comfortable to live in. 271
Outside

If you cannot find what you are looking for, please send your request to info@europisol.com. Agency services for selection of real estate are free.

Pay attention to: The information is based on the developer's data at the time of publication. To clarify the availability of real estate objects and current prices, place an order with: info@europisol.com

Elena Suslova

+ 34 647173382 (ES, RU) viber, whatsapp, telegram

info@europisol.com

Contact with us, we will help you find your house!