New villa in la Nucia

ID: N6430

From 600 000 €
New villa in la Nucia
New villa in la Nucia
Main details
Ref N6430
Property type Villa
The City la Nucia
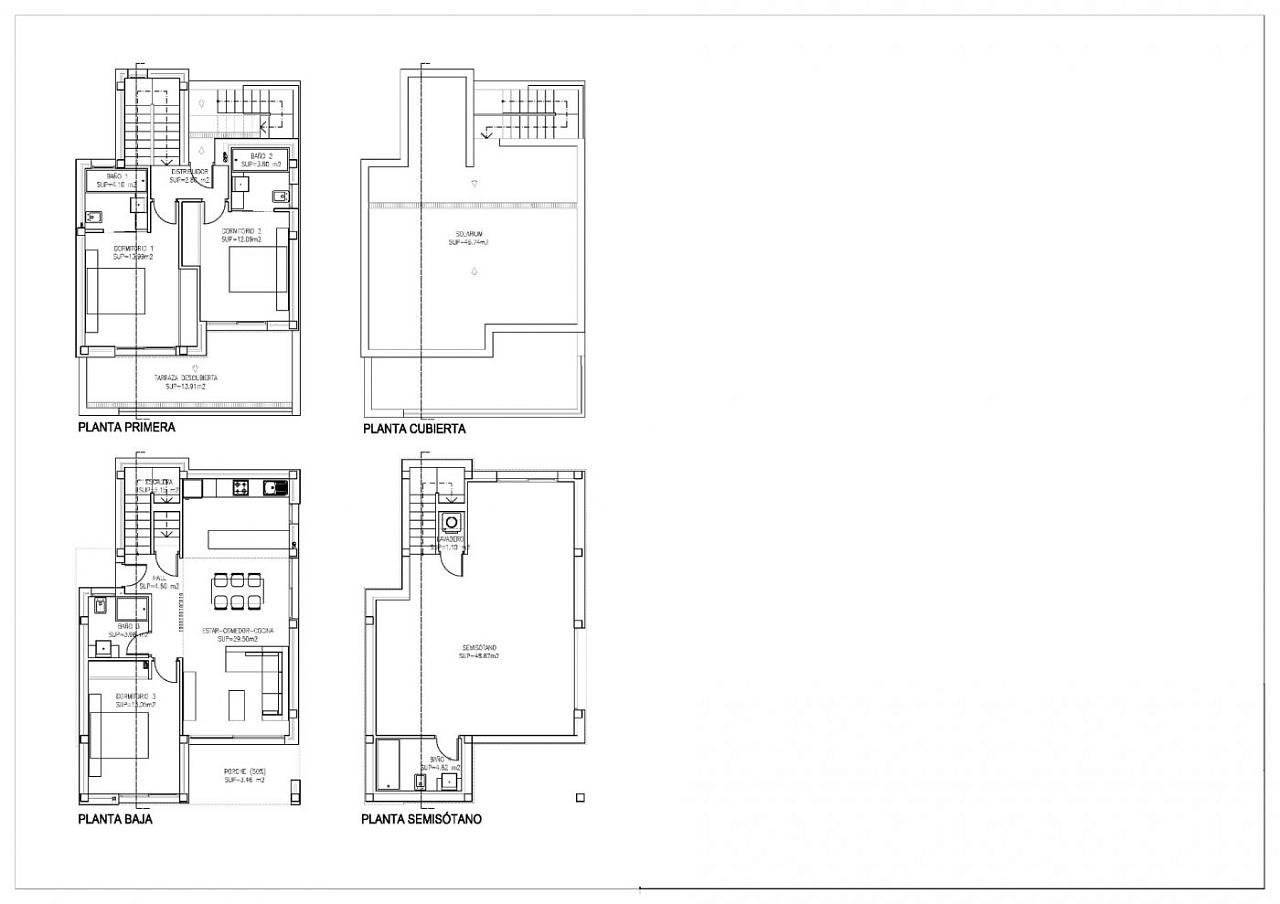
living place 141 M2
Plot 213 M2
Price  from 600 000 €
Bedrooms 3
Bathrooms 4
Characteristics
New
Private garden
Pool
NEW BUILD VILLAS IN LA NUCIA New Build Residential of comfortable and luxurious villas with private pools in La Nucia. Villas consist of 3 large double rooms with fitted and lined wardrobes.One room is on the ground floor and the other two on the first floor. It consists of 4 completely finished bathrooms with glass screens, porcelain toilets and thermostatic taps in showers, one on the first floor, another in the garage and the other 2 en suite in the rooms on the first floor. Bright living room with large windows that give access to the private plot with pool and artificial grass where you can enjoy and relax. Fully equipped American kitchen with wall and base units, high-end appliances and an island with base units, SILESTONE countertop with built-in stainless steel sink and designer stainless steel extractor hood. Installation of Air Conditioning and Heating through AEROTHERMAL ducts with 2 independent machines (dual zone). Comfort and design PORCELANOSA provide exclusive finishes, such as floating floors, natural stone floors and top quality stoneware.The entire Villa has interior and exterior LED lighting and electric shutters. Residential located in an exclusive area of great quality and with all the comforts; terrace, solarium, private garage for 2 vehicles, garden areas, urbanization, pool and everything you can imagine. Residential committed to the enviroment , equipped with solar panels for the production of domestic hot water, LED lighting and THERMAL-ACOUSTIC insulation. La Nucía is a municipality in the comarca of Marina Baixa, Alicante. It borders the municipalities of Altea, Callosa d'En Sarrià, Benidorm, Polop and L'Alfàs del Pi. La Nucia is located in a fruit valley between Benidorm and Callosa d'En Sarrià, 3 km from the coast of Altea. The urban center is on a promontory overlooking the Mediterranean Sea, 51 km north of Alicante and 8 km north of Benidorm. DISTANCES: - Access from highway A. - 5 minutes from Terra Mitica. - 5 minutes from the ELIANS School. - 5 minutes from supermarkets, cafes and all kinds of services. - 10 minutes from Benidorm Beach. - 15 minutes from Playa del Albir. - 20 minutes from Guadalest Castle. - 40Km from Alicante-Elche Airport. 271
Outside

If you cannot find what you are looking for, please send your request to info@europisol.com. Agency services for selection of real estate are free.

Pay attention to: The information is based on the developer's data at the time of publication. To clarify the availability of real estate objects and current prices, place an order with: info@europisol.com

Elena Suslova

+ 34 647173382 (ES, RU) viber, whatsapp, telegram

info@europisol.com

Contact with us, we will help you find your house!