New villa in Ciudad Quesada

ID: N9275

From 780 000 €
New villa in Ciudad Quesada
New villa in Ciudad Quesada
Main details
Ref N9275
Property type Villa
The City Ciudad Quesada
living place 214 M2
Plot 580 M2
Price  from 780 000 €
Bedrooms 3
Bathrooms 2
Characteristics
New
Private garden
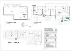
Modern New Build Villa in Doña Pepa, Rojales - Luxury Living on the Costa Blanca Exclusive Contemporary Villa in a Prestigious Residential Area This modern new build villa in Doña Pepa, Rojales offers an exceptional combination of comfort, design, and Mediterranean lifestyle. Located in one of the most sought-after areas of the Costa Blanca South, this elegant single-level villa with basement is designed to maximize space, natural light, and functionality. The peaceful residential environment is surrounded by all essential services, golf courses, and just a short drive from the best beaches of the Mediterranean. Elegant Design and Functional Layout Built on one level plus a basement, the villa features 3 bedrooms, 2 bathrooms (one en suite), and 1 guest toilet. The spacious open-plan living area connects the modern fully equipped kitchen with the dining and lounge areas, all opening onto a beautiful terrace with a private 9.5 x 3.3 m swimming pool. The basement includes a garage for two cars and additional storage space. An exterior staircase leads to a private rooftop solarium of approximately 60 m², ideal for sunbathing or enjoying panoramic views. Premium Quality and Energy Efficiency Every detail of this property reflects superior quality and comfort. The villa comes with: Furnished kitchen with high-end appliances Underfloor heating in bathrooms Aerothermal system for air conditioning and hot water LED lighting both indoors and outdoors Private landscaped garden Private parking space These features ensure optimal energy efficiency and a luxurious yet sustainable lifestyle. Perfect Location in Rojales, Costa Blanca South Doña Pepa is a prestigious urbanization within Rojales, a charming town in the Vega Baja region known for its welcoming international community and relaxed atmosphere. The villa is perfectly located: La Marquesa Golf Course: 4 km (10 minutes) Guardamar Beach: 10 km (15 minutes) Torrevieja and La Mata Beaches: 12 km Alicante International Airport: 40 km (25 minutes) Shops, restaurants, and supermarkets: within walking distance Rojales offers a perfect balance between traditional Spanish charm and modern living, with excellent services, restaurants, and a lively cultural scene. Live Your Mediterranean Dream With its contemporary architecture, high-quality finishes, and unbeatable location close to golf, beaches, and amenities, this new build villa in Doña Pepa, Rojales is the ideal home for those seeking style and comfort on the Costa Blanca. Contact us today to schedule a visit and make this exceptional property your new Mediterranean retreat.
Outside

If you cannot find what you are looking for, please send your request to info@europisol.com. Agency services for selection of real estate are free.

Pay attention to: The information is based on the developer's data at the time of publication. To clarify the availability of real estate objects and current prices, place an order with: info@europisol.com

Elena Suslova

+ 34 647173382 (ES, RU) viber, whatsapp, telegram

info@europisol.com

Contact with us, we will help you find your house!